Agente Inmobiliario Colegiado API
Venta Nuevo

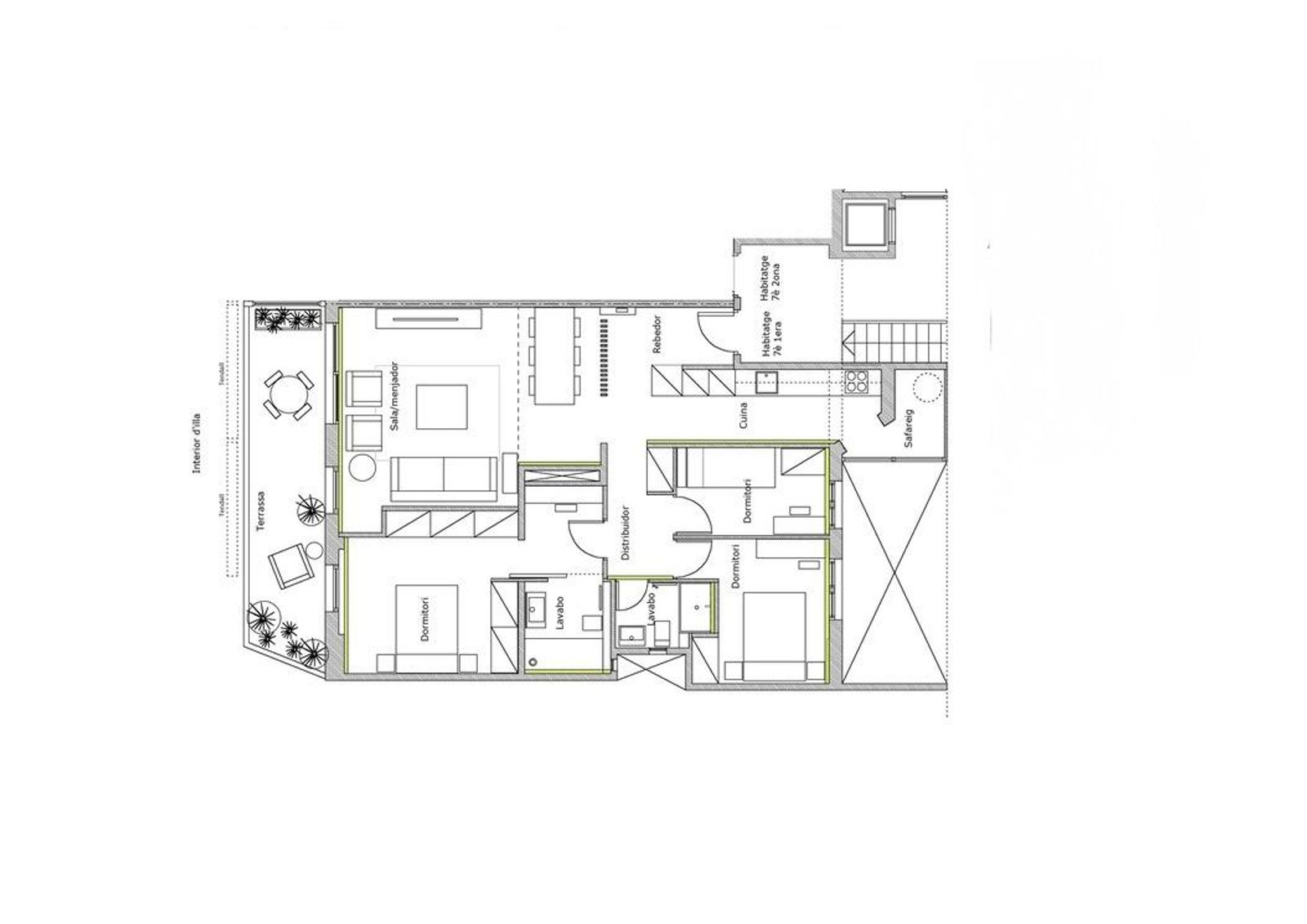
Apartamento en Francesc Macià 115m² P7

Francesc Macià, Barcelona
Ref: POI-038

Descripción

Espectacular piso reformado íntegramente con acabados de alta calidad ubicado a escasos metros de Francesc Macià. Cuenta con un espacioso y luminoso salón comedor de 30 m², cocina moderna equipada con galería, tres habitaciones (una suite, una doble y una individual), dos baños completos, aire acondicionado y una gran terraza acristalada de 13 m².

Características

3 hab
2 baños
115m²
Planta
7

Comodidades

Ascensor
Terraza
Calefacción
Aire acondicionado