Agente Inmobiliario Colegiado API
Venta

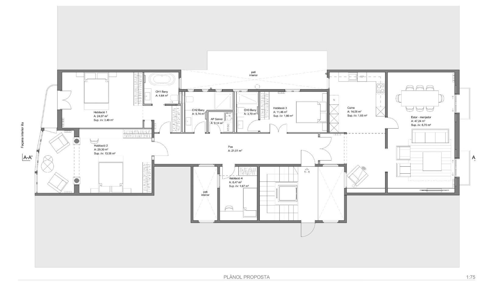
Apartamento en Eixample 236m² 4h4b P2

Eixample, Barcelona
Ref: POI-018

Descripción

Piso completamente reformado de lujo con tres habitaciones en suite y una habitación individual adecuada para uso de despacho. El amplio salón comedor de 50 m² ofrece luz natural a través de impresionantes ventanales con techos de 3 metros. Ubicado en una finca señorial en el prestigioso barrio del Quadrat d'Or.

Características

4 hab
4 baños
236m²
Piscina
Parking
Planta
2

Comodidades

Ascensor
Parking
Terraza
Calefacción
Aire acondicionado
Piscina